サイドパネルカラー:全8色からお選びいただけます。
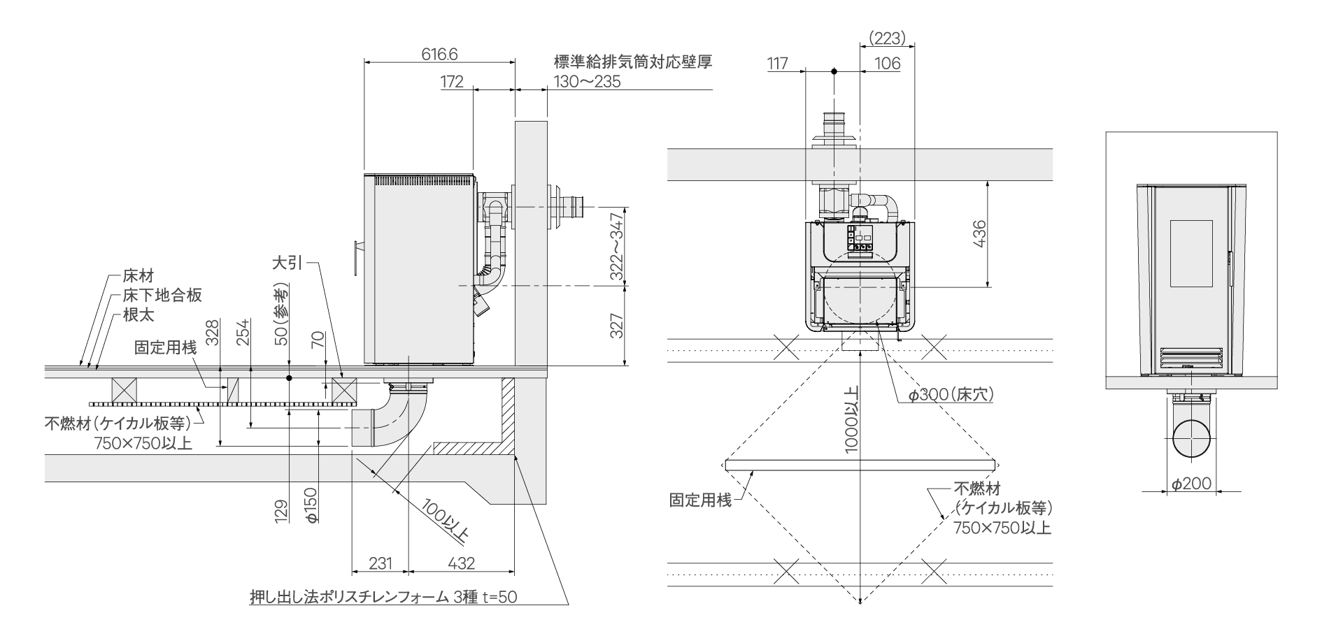
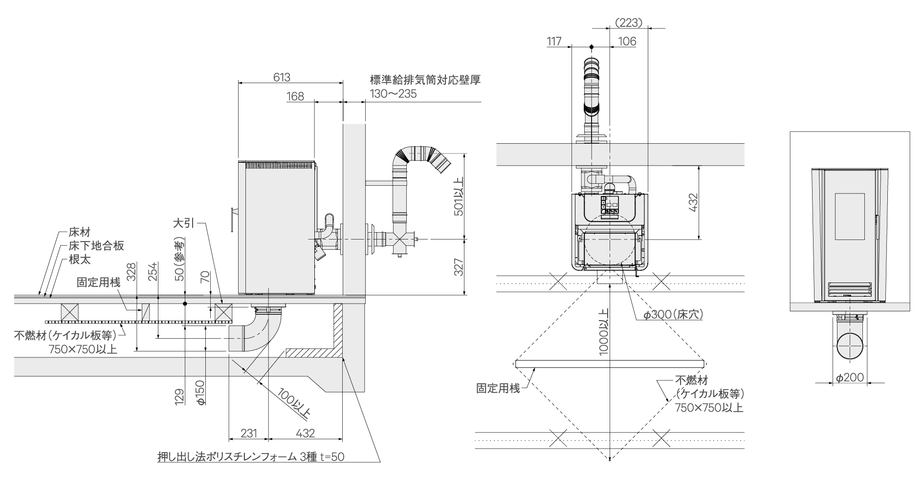
基礎断熱された建物の床下補助暖房として活用できるよう、PS-631F「ほのか」をベースに床下温風吹出仕様にしました。室内に炎の輻射熱を放ちながら、床下へ温風を送ります。
高気密住宅対応
暖房出力:1.9~5.5kW※
※ 社団法人・日本ガス石油機器工業会の算定基準によります。
本体価格:OPEN価格
ペレットストーブからの温風吹出方向を、風切替板を変えることで室内側か床下側か切り替えて使用できます。
※ストーブ運転中はやけどなどの危険があるので風切替板の変更を行わないでください。
サイドカバーは全8色から選ぶことができます(標準7色、特別色1色)
※特別色は追加料金がかかります。
[エルボ仕様]
ストーブ本体に内蔵されたファンから押し出された温風を床下か室内か選んで吹き出すことができます。設置時に床下への不燃材の取付が必要になります。
[アシストファン仕様]
床下にアシストファンを追加することで、より遠くまで温風を送ることができます。風切替板を差し込むと、床下のファンは停止し室内へ温風が吹き出します。

燃料の供給量の調整や、排気ファンの強弱の調整を行えます。(点火時のペレット量と排気ファン風量以外は取扱店からの調整対応となります)
火力の上げ下げを4段階から調整します。
炉内のお手入れをする際に排気ファンを回し、灰の飛散を低減する「クリーニングモード」が使用できます。また、運転中にロストル上に溜まった灰を飛ばすクリーニングモードが動作する際に点滅します。
〇時〇分に点火動作を開始するよう設定できます。
点火・消火を行います。
現在運転している火力が表示されます。
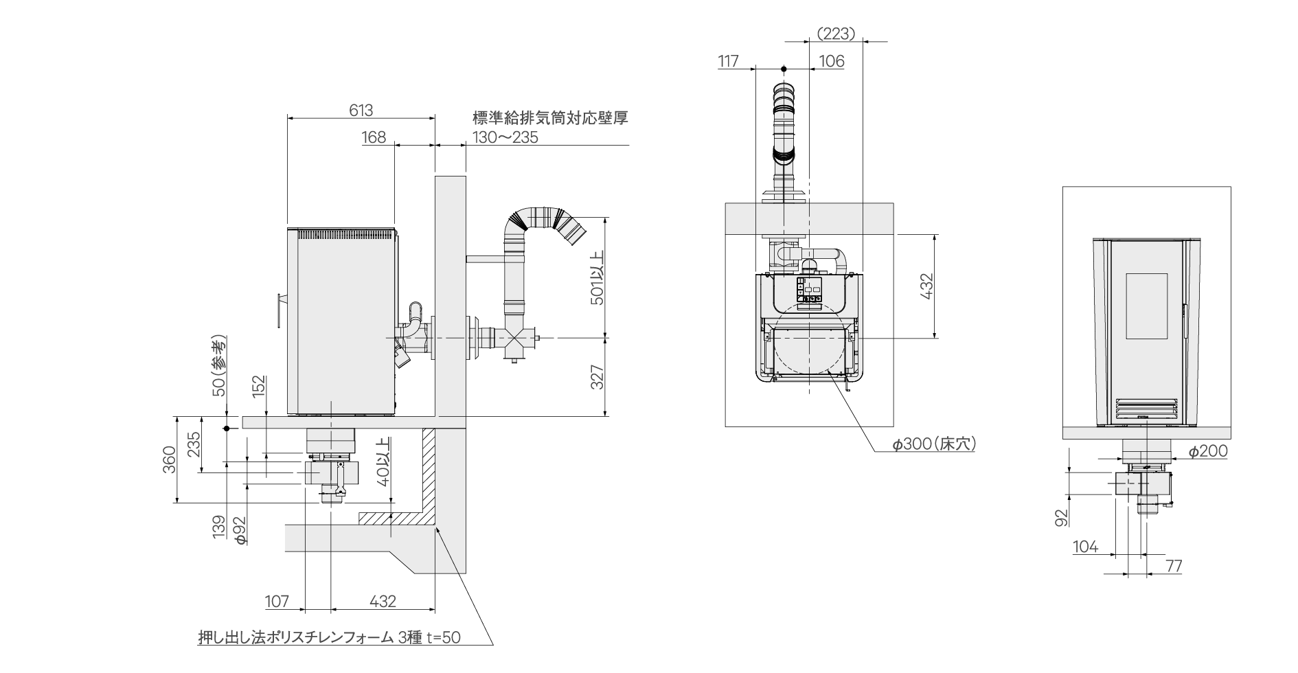
(単位:mm)
コンパクトなサイズ感と足元温風吹き出しが人気のスタンダード機種。8色のカラーバリエーションからお好みの色を選べます。
● FF式 ● 温風ON/OFF切り替え ● 4段階の火力調整 ● 高気密住宅対応
暖房能力:最大14~23畳※
普遍的な佇まいのペレットストーブ。作為的な造形に頼らず、素材の持つ美しさと職人の手仕事にこだわることで、工芸品のような1台に。
● FF式 ● 温風ON/OFF切り替え ● 4段階の火力調整+AUTO運転 ● 高気密住宅対応 ● 山形鋳物+鋼板外装
暖房能力:最大14~23畳※
世界的工業デザイナー・奥山清行(Ken Okuyama)氏主宰、KEN OKUYAMA DESIGNによるデザイン監修。石目肌や格子を取り入れたデザインが世界的にも珍しい木質ペレットストーブ。
● FF式 ● 輻射式 ● 4段階の火力調整+AUTO運転 ● 高気密住宅対応 ● 鋳物外装
暖房能力:最大26畳※
最大暖房能力50畳の大型ペレットストーブ。事務所や教室など広い空間で活躍します。
● FF式 ● 4段階の火力調整 ● 高気密住宅対応
暖房能力:最大33~50畳※