お問い合わせ
HOME製品一覧集塵設備(精米工場用)PiFシリーズ
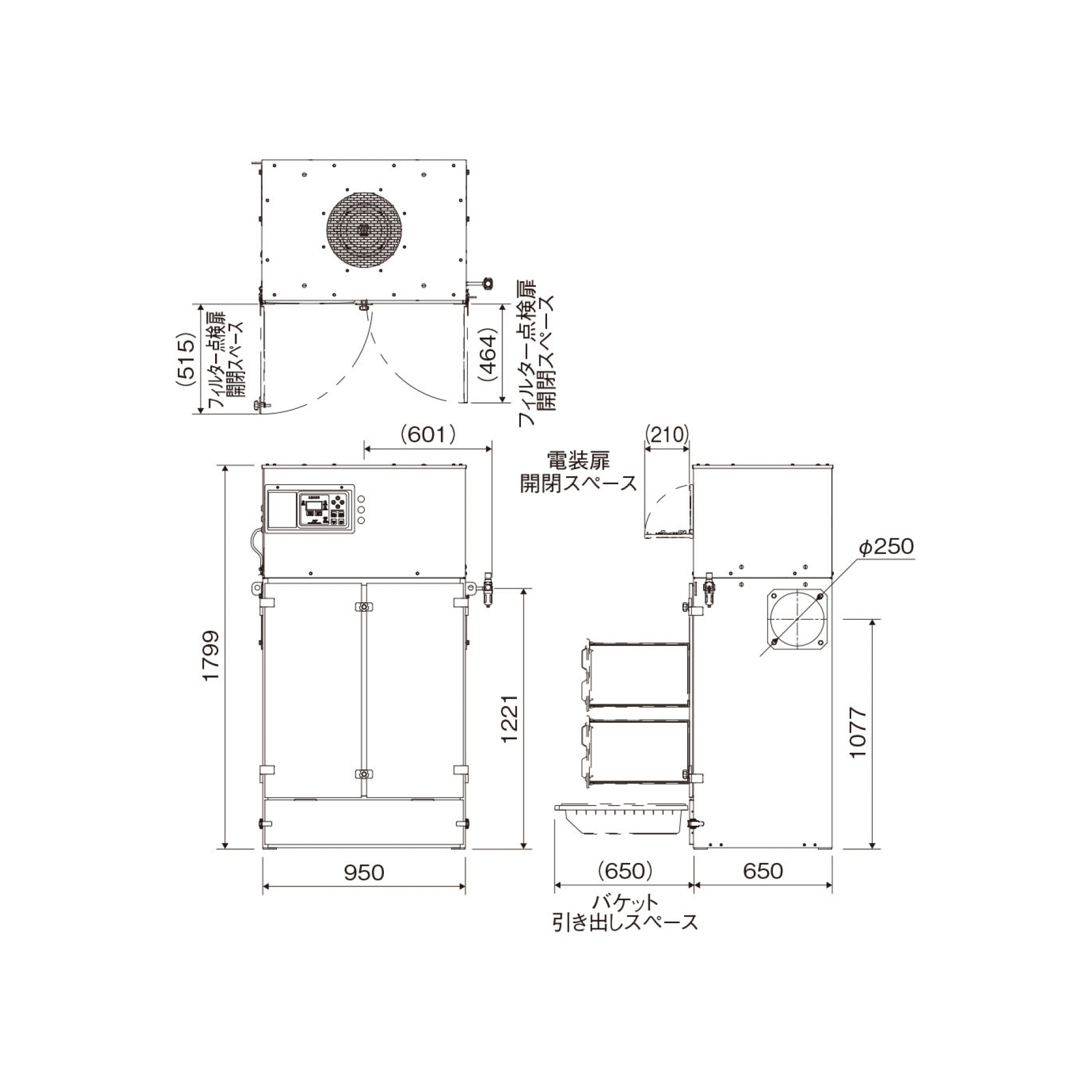
集塵設備(精米工場用)
風量:0~290立方メートル/min
菊形成型自動払落し
高効率モータの採用と、本体容積を20%削減することで省エネ・省スペースを実現しました。
| 型式 | PiF-15N | PiF-30N | PiF-45N | PiF-60N | ||||||||||||||
|---|---|---|---|---|---|---|---|---|---|---|---|---|---|---|---|---|---|---|
| 機体 寸法 | 全長(mm) | 650 | 650 | 650 | 650 | |||||||||||||
| 全幅(mm) | 520 | 520 | 680 | 950 | ||||||||||||||
| 全高(mm) | 1202 | 1619 | 1648 | 1799 | ||||||||||||||
| 機体質量(kg) | 127 | 163 | 208 | 315 | ||||||||||||||
| 電源(V) | 三相200 50/60Hz共用 | |||||||||||||||||
| モーター | 出力(kW) | 0.6 | 1.35 | 2.0 | 3.1 | |||||||||||||
| インバーター | 標準装備 | |||||||||||||||||
| 周波数調節範囲(Hz) | 30〜70 | 30〜62 | ||||||||||||||||
| 効率/形状 | IE2/全閉外扇たてフランジ | IE3/全閉外扇たてフランジ | ||||||||||||||||
| 集塵機 本体 | B点=使用推奨点 | A点 | B点 | C点 | A点 | B点 | C点 | A点 | B点 | C点 | A点 | B点 | C点 | |||||
| 風量(m3/min) | 0 | 10 | 18 | 0 | 20 | 30 | 0 | 30 | 45 | 0 | 40 | 60 | ||||||
| 静圧(kPa) | 2.65 | 1.80 | 0.50 | 2.65 | 2.06 | 1.08 | 2.65 | 1.96 | 0.64 | 3.00 | 2.26 | 0.98 | ||||||
| ファン 単体 | B点=使用点 | A点 | B点 | C点 | A点 | B点 | C点 | A点 | B点 | C点 | A点 | B点 | C点 | |||||
| 風量(m3/min) | 0 | 10 | 18 | 0 | 20 | 30 | 0 | 30 | 45 | 0 | 40 | 60 | ||||||
| 静圧(kPa) | 2.65 | 2.20 | 1.45 | 2.65 | 2.45 | 2.20 | 2.65 | 2.60 | 2.30 | 3.00 | 2.90 | 2.05 | ||||||
| ろ過風速(m/min) | 1.67 | 1.67 | 1.67 | 1.67 | ||||||||||||||
| 騒音(db[A]) | 65±2以下 | 67±2以下 | 70±2以下 | |||||||||||||||
| フィル ター | 個数(個) | 2 | 4 | 6 | 8 | |||||||||||||
| 形状 | 成形カートリッジ(長さ500mm) | |||||||||||||||||
| 払落し | 自動パルスジェット(差圧検知) | |||||||||||||||||
| 標準 | 材質 | ポリエステルスパンボンド | ||||||||||||||||
| 面積(m2) | 6.0 | 12.0 | 18.0 | 24.0 | ||||||||||||||
| ナノファイバー (オプション) | 材質 | 基材:PET(ポリエチレンテレフタレート)ブレンドセルロース+表面処理:PP(ポリプロピレン) | ||||||||||||||||
| 面積(m2) | 12.4 | 24.8 | 37.2 | 49.6 | ||||||||||||||
| 圧縮空気消費量(L/min) | 30 | 36 | 45 | 67 | ||||||||||||||
| 圧縮空気圧力(Mpa) | 0.5±0.1 | |||||||||||||||||
| ダイヤフラム弁数(個) | 2 | 3 | 4 | |||||||||||||||
| バケット容量(L) | 22.5 | 14×2 | 22.5×2 | |||||||||||||||
| 推奨ブレーカ(A) | 10 | 15 | 20 | 30 | ||||||||||||||
| 電源コード | 3(4心・プラグなし) | |||||||||||||||||
| 吸込口径(mm) | φ127 | φ150 | φ200 | φ250 | ||||||||||||||
| 使用環境温度(℃) | 0~40 | |||||||||||||||||
| 許容吸引対象温度(℃) | 0~40 | |||||||||||||||||
| 使用環境湿度(%RH) | 90以下(結露なきこと) | |||||||||||||||||
| 塗装色 | 日塗工F35-85A | |||||||||||||||||
※仕様表に記載された騒音値はメーカー規定による実測値で、すべての使用条件について騒音値を保証するものではありません。(パルスジェット作動音は除きます。)
※屋内標準仕様の性能値を記載しています。特注仕様では性能値は変化することがあります。
| 型式 | PiF-75 | PiF-120 | PiF-150 | PiF-200 | PiF-300 | |||||||||||||
|---|---|---|---|---|---|---|---|---|---|---|---|---|---|---|---|---|---|---|
| BO タイプ | 機体寸法 | 全長(mm) | 950 | 950 | 1000 | - | - | |||||||||||
| 全幅(mm) | 950 | 1398 | 1484 | - | - | |||||||||||||
| 全高(mm) | 1737 | 1731 | 2439 | - | - | |||||||||||||
| 機体質量(kg) | 360 | 460 | 710 | - | - | |||||||||||||
| BS バケット | 機体寸法 | 全長(mm) | 950 | 950 | 1000 | - | - | |||||||||||
| 全幅(mm) | 950 | 1398 | 1484 | - | - | |||||||||||||
| 全高(mm) | 1927 | 2062 | 2770 | - | - | |||||||||||||
| 機体質量(kg) | 400 | 550 | 780 | - | - | |||||||||||||
| バケット容量(L) | 45(22.5×2) | 67.5(22.5×3) | 67.5(22.5×3) | - | - | |||||||||||||
| BL バケット | 機体寸法 | 全長(mm) | 990 | 965 | 1013 | 1130 | 1230 | |||||||||||
| 全幅(mm) | 990 | 1413 | 1497 | 2132 | 3028 | |||||||||||||
| 全高(mm) | 2419 | 2382 | 3154 | 3667 | 3922 | |||||||||||||
| 機体質量(kg) | 460 | 570 | 810 | 1270※1 | 1840※2 | |||||||||||||
| バケット容量(L) | 100 | 130 | 130 | 200(100×2) | 260(130×2) | |||||||||||||
| F ホッパー | 機体寸法 | 全長(mm) | 962 | 962 | 1012 | - | - | |||||||||||
| 全幅(mm) | 962 | 1410 | 1496 | - | - | |||||||||||||
| 全高(mm) | 3538 | 3832 | 4710 | - | - | |||||||||||||
| 機体質量(kg) | 640 | 820 | 1090 | - | - | |||||||||||||
| ホッパー容量(L) | 314 | 610 | 778 | - | - | |||||||||||||
| 電源(V) | 三相200 50/60Hz共用 | |||||||||||||||||
| モーター | 出力(kW) | 5.5 | 7.5 | 11.0 | 15.0 | 22.0 | ||||||||||||
| インバーター | 標準装備 | |||||||||||||||||
| 周波数調節範囲(Hz) | 30〜60 | 30〜50 | 30〜60 | |||||||||||||||
| 効率/形状 | IE2/全閉たてフランジ | IE3/全閉外扇たてフランジ | ||||||||||||||||
| 集塵機 本体 | B点=使用推奨点 | A点 | B点 | C点 | A点 | B点 | C点 | A点 | B点 | C点 | A点 | B点 | C点 | A点 | B点 | C点 | ||
| 風量(m3/min) | 0 | 60 | 90 | 0 | 80 | 110 | 0 | 120 | 180 | 0 | 160 | 190 | 0 | 240 | 290 | |||
| 静圧(kPa) | 3.10 | 2.50 | 0.70 | 3.20 | 2.50 | 0.60 | 3.10 | 2.50 | 0.70 | 4.00 | 2.40 | 0.40 | 4.00 | 2.40 | 0.40 | |||
| ファン 単体 | B点=使用点 | A点 | B点 | C点 | A点 | B点 | C点 | A点 | B点 | C点 | A点 | B点 | C点 | A点 | B点 | C点 | ||
| 風量(m3/min) | 0 | 60 | 90 | 0 | 80 | 110 | 0 | 120 | 180 | - | - | - | - | - | - | |||
| 静圧(kPa) | 3.10 | 2.60 | 1.00 | 3.20 | 3.00 | 2.30 | 3.10 | 2.90 | 1.70 | - | - | - | - | - | - | |||
| ろ過風速(m/min) | 1.56 | 1.39 | 1.39 | 1.39 | 1.39 | |||||||||||||
| 騒音(db[A]) | 73±2以下 | 80±2以下 | ||||||||||||||||
| フィル ター | 個数(個) | 8 | 12 | 18 | 24 | 36 | ||||||||||||
| 形状 | 成形カートリッジ(長さ700mm) | |||||||||||||||||
| 払落し | 自動パルスジェット(差圧検知) | |||||||||||||||||
| 標準 | 材質 | ポリエステルスパンボンド | ||||||||||||||||
| 面積(m2) | 38.4 | 57.6 | 86.4 | 115.2 | 172.8 | |||||||||||||
| ナノファイバー (オプション) | 材質 | 基材:PET(ポリエチレンテレフタレート)ブレンドセルロース+表面処理:PP(ポリプロピレン) | ||||||||||||||||
| 面積(m2) | 76.8 | 115.2 | 172.8 | 230.4 | 345.6 | |||||||||||||
| 圧縮空気消費量(L/min) | 75 | 86 | 100 | 100 | 100 | |||||||||||||
| 圧縮空気圧力(Mpa) | 0.5±0.1 | |||||||||||||||||
| ダイヤフラム弁数(個) | 4 | 6 | 6 | 8 | 12 | |||||||||||||
| 推奨ブレーカ(A) | 50 | 60 | 75 | 125 | 175 | |||||||||||||
| 電源コード | 別売り(4心) | |||||||||||||||||
| 吸込口径(mm) | φ300 | φ300 | φ380 | φ450 | φ580 | |||||||||||||
| 使用環境温度(℃) | 0~40 | |||||||||||||||||
| 許容吸引対象温度(℃) | 0~40 | |||||||||||||||||
| 使用環境湿度(%RH) | 90以下(結露なきこと) | |||||||||||||||||
| 塗装色 | 日塗工F35-85A | |||||||||||||||||
※仕様表に記載された騒音値はメーカー規定による実測値で、すべての使用条件について騒音値を保証するものではありません。(パルスジェット作動音は除きます。)
※屋内標準仕様の性能値を記載しています。特注仕様では性能値は変化することがあります。
※1 自立式電装箱(質量120kg)は含まず。
※2 自立式電装箱(質量130kg)は含まず。